Główny przystanek FlixBus w Rzeszowie gdzie dokładnie odjeżdżają autobusy?
- Autobusy FlixBus odjeżdżają z Dworca Lokalnego przy ulicy Towarnickiego 7 w Rzeszowie.
- Przystanek znajduje się w bezpośrednim sąsiedztwie Głównego Dworca Kolejowego PKP, co ułatwia przesiadki.
- Dla kierunków Przemyśl, Medyka i Ukraina odjazdy zazwyczaj odbywają się ze stanowiska nr 10.
- Numer stanowiska dla innych kierunków należy zawsze sprawdzić na bilecie.
- W pobliżu dostępne są poczekalnie, toalety i punkty gastronomiczne Dworca Głównego PKP.
Gdzie dokładnie znajduje się przystanek FlixBus w Rzeszowie?
Główny przystanek FlixBus w Rzeszowie, z którego odjeżdża większość autobusów, to Dworzec Lokalny. Znajdziesz go pod adresem ulica Towarnickiego 7, 35-010 Rzeszów. Co ważne, Dworzec Lokalny położony jest w bardzo dogodnej lokalizacji tuż obok Głównego Dworca Kolejowego PKP, co czyni go kluczowym węzłem przesiadkowym w mieście.
Twój punkt startowy: Dworzec Lokalny przy ul. Towarnickiego 7
Dworzec Lokalny przy ulicy Towarnickiego 7 to nie tylko przystanek FlixBusa, ale także ważny punkt komunikacyjny dla autobusów regionalnych i podmiejskich. Jego bliskość do Dworca Głównego PKP sprawia, że jest to świetnie skomunikowane miejsce, łatwe do osiągnięcia z każdej części Rzeszowa, a także idealne dla osób, które przesiadają się z pociągu na autobus lub odwrotnie. To właśnie stąd rozpocznie się Twoja podróż z zielonym autobusem.
Jak trafić na miejsce? Charakterystyczne punkty orientacyjne
Zlokalizowanie Dworca Lokalnego jest naprawdę proste, zwłaszcza jeśli znasz Dworzec Główny PKP. Wystarczy, że udasz się w jego okolice, a Dworzec Lokalny będzie tuż obok. Z moich obserwacji wynika, że dla popularnych kierunków, takich jak Przemyśl, Medyka czy Ukraina, odjazdy FlixBusa najczęściej odbywają się ze stanowiska nr 10. Zawsze jednak radzę sprawdzić numer stanowiska na swoim bilecie, ponieważ dla innych tras może się on różnić i jest to najbardziej aktualna informacja, jaką możesz mieć.

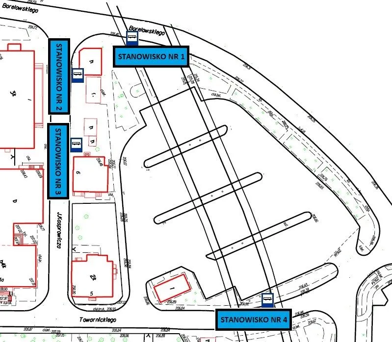
Wizualizacja odjazdu: Zobacz przystanek na mapie
Aby ułatwić Ci orientację, poniżej znajdziesz mapę, na której wyraźnie oznaczony jest punkt odjazdu FlixBus w Rzeszowie Dworzec Lokalny przy ul. Towarnickiego 7. Dzięki niej z łatwością zaplanujesz swoją drogę i unikniesz pomyłek.
Planowanie podróży z Rzeszowa: Co warto wiedzieć przed wyjazdem?
Czy wszystkie autobusy odjeżdżają z tego samego stanowiska?
Jak już wspomniałem, choć stanowisko nr 10 jest często wykorzystywane dla konkretnych kierunków, takich jak Przemyśl, Medyka czy Ukraina, nie wszystkie autobusy odjeżdżają z tego samego miejsca. Numer stanowiska może się różnić w zależności od trasy. Dlatego tak ważne jest, abyś zawsze zweryfikował tę informację na swoim bilecie. To tam znajdziesz najbardziej precyzyjne dane dotyczące Twojego konkretnego odjazdu.
Sprawdź bilet! Dlaczego to najważniejszy krok przed podróżą?
Mogę z pełnym przekonaniem powiedzieć, że Twój bilet to najważniejsze źródło informacji przed każdą podróżą FlixBusem. To na nim widnieje dokładny adres przystanku, a przede wszystkim aktualny numer stanowiska odjazdu. FlixBus regularnie aktualizuje te dane, więc bilet, który posiadasz, zawiera najbardziej precyzyjne i bieżące wskazówki. Nie polegaj wyłącznie na ogólnych informacjach zawsze miej swój bilet pod ręką i sprawdź go dokładnie.
FlixBus na swojej stronie internetowej podkreśla, że najbardziej aktualne i precyzyjne informacje adresowe dotyczące przystanku zawsze znajdują się na bilecie pasażera.
Udogodnienia dla podróżnych: Gdzie poczekać na autobus i skorzystać z toalety?
Bliskość Głównego Dworca PKP to duży atut dla podróżnych FlixBusa. Dzięki temu masz dostęp do szeregu udogodnień, które umilą Ci oczekiwanie na autobus:
- Poczekalnie: Na Dworcu PKP znajdziesz komfortowe poczekalnie, gdzie możesz usiąść i odpocząć przed podróżą.
- Kasy biletowe: Jeśli potrzebujesz dopytać o coś lub kupić bilet na pociąg, kasy są w zasięgu ręki.
- Punkty gastronomiczne: W okolicy Dworca PKP i na samym dworcu znajdziesz liczne kawiarnie, bary i sklepy, gdzie kupisz coś do jedzenia i picia.
- Toalety: Dostępne są ogólnodostępne toalety, co jest kluczowe podczas dłuższych podróży.
Jak najwygodniej dotrzeć na Dworzec Lokalny w Rzeszowie?
Dojazd komunikacją miejską: Które linie autobusowe wybrać?
Dworzec Lokalny, dzięki swojemu położeniu przy Dworcu PKP, jest bardzo dobrze skomunikowany z resztą Rzeszowa. Wiele linii autobusowych MPK Rzeszów kursuje w te okolice. Moja rada to sprawdzenie aktualnych rozkładów jazdy na stronie MPK Rzeszów lub w aplikacjach mobilnych. Wpisz "Dworzec PKP" lub "Towarnickiego" jako punkt docelowy, a system wskaże Ci najbardziej dogodne połączenia z Twojej lokalizacji.
Podróżujesz pociągiem? Jak blisko jest z Dworca PKP?
Jeśli przyjeżdżasz do Rzeszowa pociągiem, masz naprawdę komfortową sytuację. Dworzec Lokalny znajduje się dosłownie kilka kroków od Głównego Dworca Kolejowego PKP. To sprawia, że przesiadka z pociągu na autobus FlixBus jest niezwykle szybka i wygodna. Wystarczy wyjść z budynku dworca PKP, a Dworzec Lokalny będzie widoczny po sąsiedzku.
Przyjazd samochodem: Gdzie zaparkować w okolicy przystanku FlixBus?
Jeśli planujesz przyjechać na Dworzec Lokalny samochodem, musisz liczyć się z tym, że w centrum Rzeszowa dominują parkingi płatne. W okolicy ul. Towarnickiego i Dworca PKP znajdziesz zarówno strefy płatnego parkowania miejskiego, jak i prywatne parkingi. Zawsze zalecam wcześniejsze sprawdzenie dostępności i cenników, aby uniknąć niespodzianek. Pamiętaj, że w godzinach szczytu znalezienie wolnego miejsca może być wyzwaniem.
Najczęstsze błędy i problemy: Jak ich uniknąć przed podróżą z Rzeszowa?
Brak biletu i kupowanie u kierowcy czy to dobry pomysł?
Z mojego doświadczenia wynika, że najbezpieczniej jest kupić bilet online przez stronę internetową FlixBusa lub ich aplikację mobilną. Dzięki temu masz gwarancję miejsca i często lepszą cenę. Zakup biletu u kierowcy jest możliwy, ale wiąże się z ryzykiem nie ma gwarancji wolnych miejsc, a cena może być wyższa. W szczycie sezonu lub na popularnych trasach, brak biletu online to niemal pewność, że nie wsiądziesz do autobusu.
Mój autobus się spóźnia: Jak sprawdzić jego aktualną pozycję?
W przypadku opóźnień, FlixBus oferuje bardzo przydatne narzędzie. Na ich stronie internetowej znajdziesz funkcję "Gdzie jest mój FlixBus?". Wystarczy, że wpiszesz numer swojego połączenia lub przystanek odjazdu/przyjazdu, a system pokaże Ci aktualną pozycję autobusu na mapie i szacowany czas przyjazdu. To naprawdę ułatwia planowanie i zmniejsza stres związany z oczekiwaniem.Przeczytaj również: Dojazd do Dłutowa: Autobusy z Pabianic, Łodzi i Bełchatowa
Bagaż podręczny a główny co warto wiedzieć o limitach FlixBusa?
FlixBus, podobnie jak inni przewoźnicy, ma określone zasady dotyczące bagażu. Zazwyczaj w cenie biletu masz prawo do jednego bagażu podręcznego i jednego bagażu głównego. Jednak ich wymiary i waga są ściśle określone. Aby uniknąć dodatkowych opłat lub konieczności pozostawienia części bagażu, zawsze sprawdź aktualne limity i wymiary bezpośrednio na oficjalnej stronie internetowej FlixBusa przed spakowaniem się. To mała rzecz, która może zaoszczędzić Ci sporo nerwów na przystanku.




